Budowa podjazdu dla osób niepełnosprawnych to kluczowy element, który zapewnia dostępność i komfort użytkowania dla osób z ograniczeniami ruchowymi. Aby stworzyć bezpieczny i funkcjonalny podjazd, należy przestrzegać określonych wymagań oraz wykonać kilka kluczowych kroków. W tym artykule przedstawimy, jak zaplanować, zbudować i utrzymać podjazd, aby spełniał wszystkie normy i był wygodny w użytkowaniu.
Ważne jest, aby podjazd miał odpowiednie wymiary, nachylenie oraz był wykonany z trwałych materiałów. Zastosowanie właściwych rozwiązań zapewni bezpieczeństwo zarówno podczas budowy, jak i użytkowania. Dodatkowo, zapoznanie się z lokalnymi przepisami budowlanymi pozwoli uniknąć problemów związanych z legalnością konstrukcji. Dzięki naszym poradom, każdy będzie mógł stworzyć podjazd, który będzie zarówno estetyczny, jak i praktyczny.
Najważniejsze informacje:
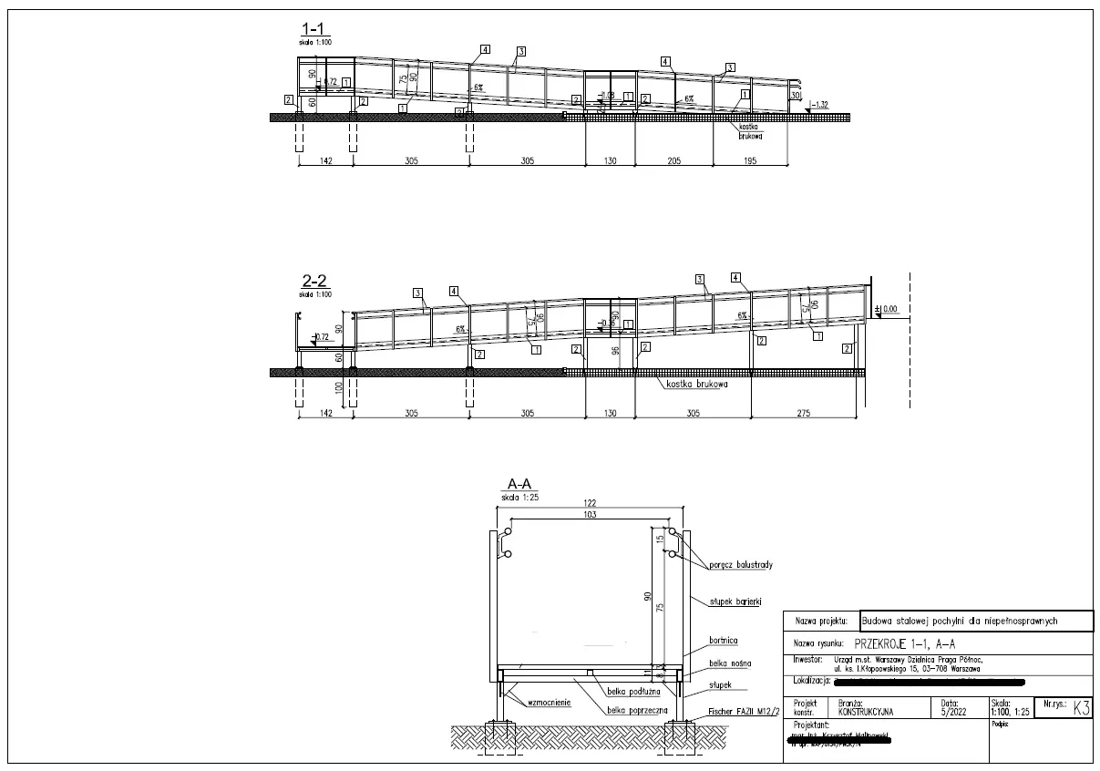
- Minimalna szerokość podjazdu powinna wynosić co najmniej 120 cm.
- Nachylenie podjazdu nie powinno przekraczać 15%, co odpowiada maksymalnej wysokości niwelacji poziomu 15 cm na 1 metr długości.
- Podjazdy dłuższe niż 9 metrów powinny mieć zaprojektowane spoczniki co 8 lub 6 metrów.
- Warto zastosować antypoślizgową powierzchnię dla zwiększenia bezpieczeństwa.
- Poręcze powinny być zamontowane na wysokości od 70 do 90 cm.
- Wybór materiałów, takich jak stal i beton, wpływa na trwałość i bezpieczeństwo podjazdu.
- Przed rozpoczęciem budowy warto skonsultować się z urzędem gminy w celu zapoznania się z lokalnymi przepisami.
Jak zaplanować podjazd dla niepełnosprawnych, aby był funkcjonalny
Planowanie podjazdu dla osób niepełnosprawnych to kluczowy krok, który zapewnia dostępność i komfort dla użytkowników. Odpowiednia lokalizacja oraz wymiary rampy mają ogromne znaczenie dla jej funkcjonalności. Ważne jest, aby podjazd był umiejscowiony w pobliżu głównych wejść do budynków, co ułatwia poruszanie się osobom na wózkach inwalidzkich. Dobrze zaplanowany podjazd może znacząco wpłynąć na codzienne życie osób z ograniczeniami ruchowymi.
Oprócz lokalizacji, kluczowe są także odpowiednie wymiary rampy. Minimalna szerokość podjazdu powinna wynosić 120 cm, co pozwala na swobodne manewrowanie wózkiem. Dodatkowo, nachylenie rampy nie powinno przekraczać 15%, aby zapewnić bezpieczeństwo i komfort użytkowania. Dla dłuższych podjazdów, zaleca się projektowanie spoczników co 8 lub 6 metrów, co ułatwia odpoczynek podczas pokonywania stromej powierzchni.
Wybór lokalizacji podjazdu dla łatwego dostępu
Wybór odpowiedniej lokalizacji dla podjazdu jest niezwykle istotny. Należy uwzględnić bliskość do wejść oraz obecność przeszkód, takich jak drzewa, ogrodzenia czy inne budynki. Bezpieczeństwo użytkowników powinno być priorytetem, dlatego warto unikać miejsc, gdzie podjazd może być narażony na niekorzystne warunki atmosferyczne, takie jak silny wiatr czy opady deszczu. Dobrze zaplanowana lokalizacja zwiększa także wygodę korzystania z rampy, co jest kluczowe dla osób z ograniczeniami ruchowymi.
- Podjazd powinien znajdować się blisko głównego wejścia do budynku.
- Unikaj przeszkód, które mogą utrudniać dostęp, takich jak drzewa czy krawężniki.
- Rozważ warunki atmosferyczne, które mogą wpłynąć na bezpieczeństwo użytkowników.
Określenie wymagań dotyczących wymiarów i nachylenia
Podczas planowania podjazdu dla niepełnosprawnych, kluczowe jest określenie odpowiednich wymiarów oraz nachylenia rampy. Minimalna szerokość podjazdu powinna wynosić 120 cm, co umożliwia swobodne poruszanie się osobom na wózkach inwalidzkich. Nachylenie rampy nie powinno przekraczać 15%, co oznacza, że na każdy metr długości podjazdu maksymalna wysokość niwelacji powinna wynosić 15 cm. Taki kąt nachylenia zapewnia komfort i bezpieczeństwo użytkowania, a także ułatwia pokonywanie rampy.
Dla podjazdów o długości przekraczającej 9 metrów, niezbędne jest zaprojektowanie spoczników co 8 lub 6 metrów, w zależności od wysokości, z minimalnymi wymiarami 150×150 cm. Spoczniki te stanowią miejsce odpoczynku dla użytkowników, co jest szczególnie ważne w przypadku dłuższych ramp. Warto również pamiętać, że odpowiednie wymiary i nachylenie rampy są kluczowe dla jej funkcjonalności oraz zgodności z obowiązującymi normami i przepisami.
Jakie materiały wybrać do budowy podjazdu, aby był trwały
Wybór materiałów do budowy podjazdu dla osób niepełnosprawnych ma istotne znaczenie dla jego trwałości i bezpieczeństwa. Najczęściej stosowane materiały to stal i beton, które charakteryzują się wysoką odpornością na uszkodzenia oraz długowiecznością. Stal jest szczególnie ceniona za swoją wytrzymałość, natomiast beton zapewnia stabilność oraz łatwość w utrzymaniu. Warto jednak pamiętać, że zarówno stal, jak i beton wymagają odpowiedniej obróbki, aby były bezpieczne i estetyczne.
Alternatywne materiały, takie jak kostka brukowa, płyty kamienne czy płytki tarasowe, oferują lepszy wygląd, ale mogą mieć swoje wady. Ich zastosowanie wymaga solidnej podbudowy, a w niektórych przypadkach mogą występować problemy z zaleganiem śniegu lub wody. Dla osób poszukujących rozwiązań tymczasowych dostępne są przenośne ramy lub platformy podnośnikowe, które są łatwe w użyciu, ale mogą wymagać pomocy innej osoby. Wybór materiałów powinien być dostosowany do indywidualnych potrzeb oraz warunków panujących w danym miejscu.
Materiał | Zalety | Wady |
Stal | Wysoka wytrzymałość, odporność na uszkodzenia | Wymaga konserwacji, może rdzewieć |
Beton | Stabilność, łatwość w utrzymaniu | Może być śliski, wymaga odpowiedniego formowania |
Kostka brukowa | Estetyka, różnorodność wzorów | Wymaga solidnej podbudowy, problemy z wodą |
Płyty kamienne | Naturalny wygląd, trwałość | Wysoki koszt, trudniejsze w montażu |
Porównanie różnych materiałów: beton, stal, kostka brukowa
Wybór materiałów do budowy podjazdu dla niepełnosprawnych jest kluczowy dla jego trwałości i funkcjonalności. Beton jest jednym z najczęściej stosowanych materiałów ze względu na swoją wytrzymałość i stabilność. Jest odporny na warunki atmosferyczne oraz uszkodzenia mechaniczne, co czyni go idealnym rozwiązaniem na długie lata. Jednak jego powierzchnia może być śliska, szczególnie w deszczowe dni, dlatego warto rozważyć zastosowanie antypoślizgowych dodatków.
Stal to kolejny popularny wybór, szczególnie w przypadku ramp o dużych obciążeniach. Jest niezwykle mocna i odporna na uszkodzenia, co sprawia, że idealnie nadaje się do intensywnego użytkowania. Warto jednak pamiętać, że stal wymaga regularnej konserwacji, aby zapobiec korozji. Z kolei kostka brukowa oferuje estetyczny wygląd i różnorodność wzorów, ale jej instalacja wymaga solidnej podbudowy, a w zimie może występować problem z zalegającym śniegiem. Każdy materiał ma swoje zalety i wady, dlatego warto dokładnie rozważyć wybór przed podjęciem decyzji.
Jak dostosować wybór materiałów do budżetu i estetyki
Wybierając materiały do budowy podjazdu dla osób niepełnosprawnych, należy wziąć pod uwagę zarówno budżet, jak i estetykę. Koszt materiałów może się znacznie różnić, dlatego warto porównać dostępne opcje przed dokonaniem zakupu. Na przykład, beton jest często tańszą opcją, podczas gdy kostka brukowa może być droższa, ale oferuje lepszy wygląd. Ważne jest, aby znaleźć równowagę między ceną a jakością, aby podjazd był zarówno funkcjonalny, jak i atrakcyjny wizualnie.Czytaj więcej: Co na podjazd: najlepsze materiały, które zaoszczędzą Twój budżet
Jak przeprowadzić budowę podjazdu krok po kroku, aby uniknąć błędów
Budowa podjazdu dla niepełnosprawnych wymaga przestrzegania kilku kluczowych kroków, aby zapewnić bezpieczeństwo i funkcjonalność. Pierwszym etapem jest przygotowanie terenu, co oznacza usunięcie wszelkich przeszkód oraz wyrównanie powierzchni. Następnie należy wykonać odpowiednie oznaczenia, aby określić wymiary podjazdu i jego nachylenie. Ważne jest, aby podczas budowy stosować się do lokalnych przepisów budowlanych oraz norm dotyczących dostępności, co pozwoli uniknąć późniejszych problemów.
Po przygotowaniu terenu przystępujemy do właściwej budowy. Kluczowe jest, aby podczas montażu rampy zachować odpowiednie nachylenie oraz szerokość, co zapewni komfort użytkowania. Dobrze jest również zainstalować poręcze na odpowiedniej wysokości, co zwiększy bezpieczeństwo. Po zakończeniu budowy warto przeprowadzić testy, aby upewnić się, że podjazd spełnia wszystkie wymagania funkcjonalne i bezpieczeństwa. Regularne kontrole oraz konserwacja są niezbędne, aby podjazd służył przez długie lata.
Kluczowe etapy budowy podjazdu dla osób niepełnosprawnych
Budowa podjazdu dla osób niepełnosprawnych składa się z kilku istotnych etapów. Na początku należy wykonać odpowiednie pomiary i oznaczenia, aby ustalić lokalizację rampy. Kolejnym krokiem jest przygotowanie podłoża, co obejmuje usunięcie przeszkód oraz wyrównanie terenu. Następnie przystępujemy do budowy, dbając o zachowanie wymagań dotyczących szerokości i nachylenia rampy. W ostatniej fazie montujemy poręcze oraz przeprowadzamy testy, aby upewnić się, że podjazd jest bezpieczny i funkcjonalny.
Jak zapewnić bezpieczeństwo podczas budowy i użytkowania
Aby zapewnić bezpieczeństwo podczas budowy podjazdu dla niepełnosprawnych, kluczowe jest przestrzeganie odpowiednich praktyk. Przede wszystkim, przed rozpoczęciem prac budowlanych, należy dokładnie zaplanować i przygotować teren, usuwając wszelkie przeszkody, które mogą stanowić zagrożenie. Podczas samej budowy warto korzystać z odpowiedniego wyposażenia ochronnego, takiego jak kaski, rękawice czy obuwie ochronne, aby zminimalizować ryzyko kontuzji. Po zakończeniu budowy, przed oddaniem podjazdu do użytku, należy przeprowadzić dokładne inspekcje, aby upewnić się, że wszystkie elementy są prawidłowo zamontowane i spełniają normy bezpieczeństwa.
Bezpieczeństwo użytkowania rampy również jest niezwykle istotne. Regularne kontrole stanu technicznego podjazdu, w tym sprawdzenie poręczy oraz powierzchni, mogą zapobiec wypadkom. Warto również zadbać o odpowiednie oznakowanie rampy, aby informować użytkowników o ewentualnych zagrożeniach, takich jak strome nachylenie czy śliska nawierzchnia. Dobrze zaprojektowany i regularnie utrzymywany podjazd będzie nie tylko funkcjonalny, ale także bezpieczny dla wszystkich użytkowników.

Jakie przepisy i normy obowiązują przy budowie podjazdów
Budowa podjazdów dla osób niepełnosprawnych wiąże się z przestrzeganiem określonych przepisów i norm, które mają na celu zapewnienie bezpieczeństwa i dostępności. W Polsce, przepisy te są określone w Ustawie o równym traktowaniu oraz w Polskich Normach, które regulują kwestie dotyczące budowy obiektów użyteczności publicznej. Minimalne wymagania dotyczące szerokości, nachylenia oraz bezpieczeństwa ramp są szczegółowo opisane w tych dokumentach, co pozwala na stworzenie funkcjonalnych i bezpiecznych rozwiązań.
Dodatkowo, lokalne przepisy budowlane mogą wprowadzać dodatkowe wymagania, takie jak kolorystyka poręczy czy oznakowanie rampy. Przed rozpoczęciem budowy warto skonsultować się z odpowiednim urzędem gminy, aby upewnić się, że projekt podjazdu jest zgodny z obowiązującymi normami. Przestrzeganie tych przepisów nie tylko zwiększa bezpieczeństwo, ale także ułatwia korzystanie z rampy osobom z ograniczeniami ruchowymi, co jest najważniejszym celem budowy podjazdów.
Jak wykorzystać nowoczesne technologie w budowie podjazdów
W dzisiejszych czasach, nowoczesne technologie mogą znacząco ułatwić proces budowy podjazdów dla niepełnosprawnych oraz poprawić ich funkcjonalność. Przykładem są inteligentne systemy monitorowania, które mogą być zainstalowane na rampach, aby śledzić ich stan oraz wykrywać ewentualne uszkodzenia. Takie systemy mogą informować użytkowników o konieczności przeprowadzenia konserwacji, co zwiększa bezpieczeństwo i wydłuża żywotność podjazdu. Ponadto, wykorzystanie druku 3D do tworzenia elementów rampy może przyspieszyć proces budowy oraz umożliwić precyzyjne dopasowanie do indywidualnych potrzeb użytkowników.
Warto również zwrócić uwagę na energooszczędne oświetlenie LED, które można zainstalować wzdłuż rampy, aby zwiększyć widoczność w nocy i poprawić bezpieczeństwo. Integracja takich rozwiązań z systemami zarządzania budynkiem może przyczynić się do stworzenia bardziej przyjaznych i dostępnych przestrzeni publicznych. W przyszłości, wykorzystanie technologii smart w budowie podjazdów może stać się standardem, co pozwoli na lepsze dostosowanie infrastruktury do potrzeb osób z ograniczeniami ruchowymi.